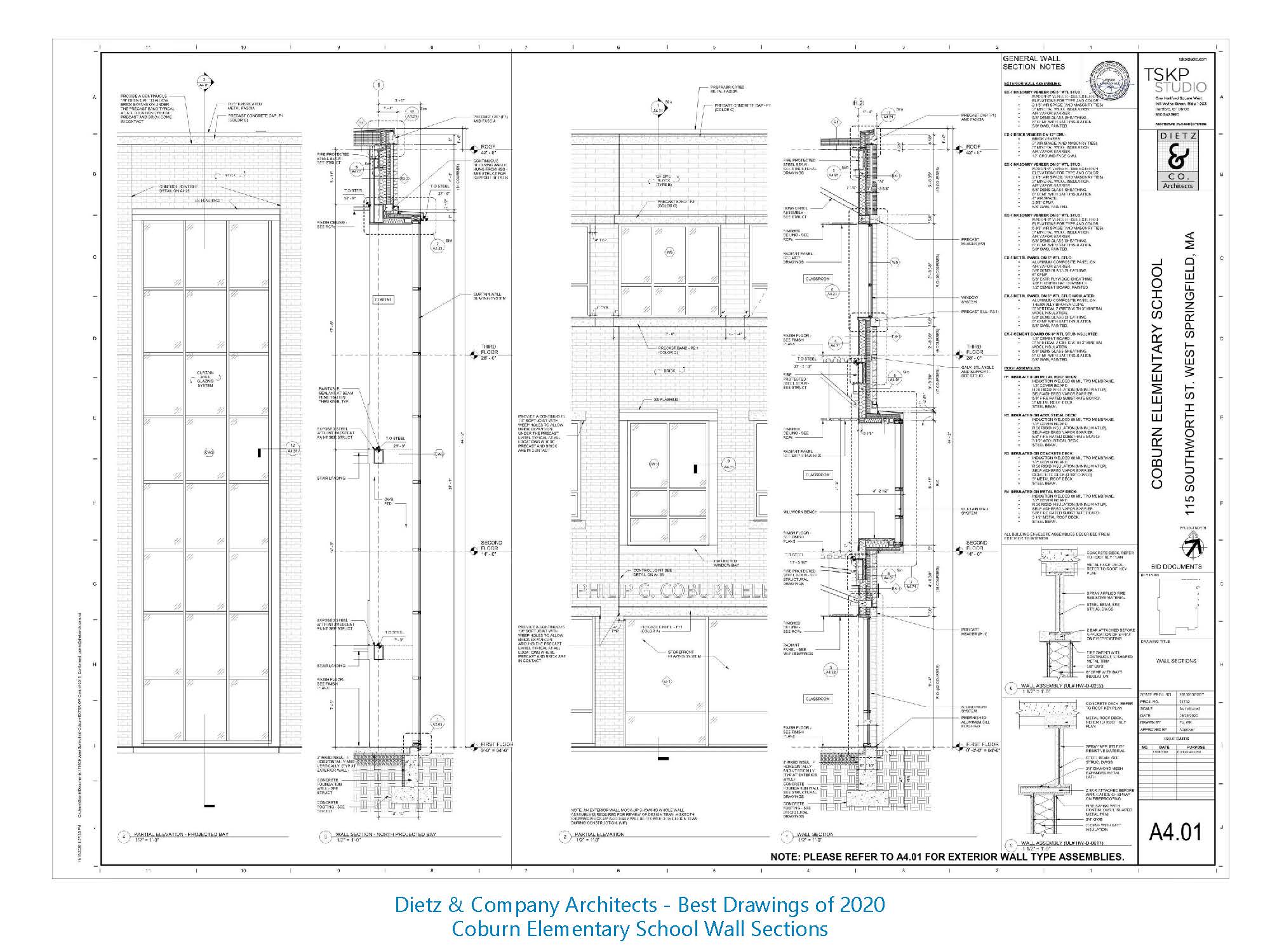
In a year of WORSTS, we’ve compiled our BEST. Please enjoy the Dietz & Company Architects, Inc. Best 20 Drawings of 2020. We didn’t have to look very far to find sketches, drawings and renderings we were proud of; these are our favorite examples of our graphic experts hard at work translating our design concepts into a digital reality. We utilize drawings like these to communicate big picture ideas to new clients, to explore spatial qualities and finishes of our projects and to refine design concepts into a constructible details. We hope you enjoy some of the work highlighted here, we certainly enjoyed making it.





















